Переговорная панель SPA-M6-V2

Переговорная панель SPA-M6-V2

Под заказ

Уточняйте стоимость у менеджеров

Уточнить стоимость
Документация
Брошюра SPA-M6-V2
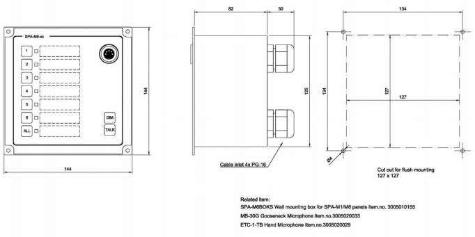
Переговорная панель SPA-M6-V2 предусматривает подключение до 6 зон связи для одной системы SPA. Встроены предусилитель с заданным уровнем сигнала и регуляторы тембра.
Клавиши отвечают за команду 'ОБЩИЙ РАЗГОВОР' и 'РАЗГОВОР ОПРЕДЕЛЕННОЙ ЗОНЫ'
Сменная текстовая метка для каждой Zone клавиши. 
Кнопки Zone имеют индикатор подтверждения активации разговора. Предусмотрен скрытый настенный монтаж с помощью специальной монтажной коробки SPA-M6BOKS. Локальный немой контакт для внешнего громкоговорителя.
 



Примечание: Микрофоны MB-30G и ETC-1-TB заказывается отдельно. 
Переговорная панель SPA-M6-V2


Габариты (ДхШхВ) 144 х 144 х 82 мм
Вес 0,5 кг
Выходной сигнал 0,775 мВ, 0 дБ
Соединения Plugable винтовые клеммы для 2,5 мм2
Кабельные вводы 4 х PG-16
Размер кабеля 6 х 2 х 0,75 мм2
Класс защиты IP-44

Другие товары категории