Система обнаружения дыма SDS-2/6
30.06.2016
| Tип | Версия | Запчасти | Оборудование | |||||||||||||||||||||||||||||||
| SDS-M0420 | От 420.0010 |
|
Клиновой ремень привода 60 кг
|
|||||||||||||||||||||||||||||||
| SDS-M0430 230V (50kg) |
Version 1: 430.0010 to 430.1530 |
|
![]() |
|||||||||||||||||||||||||||||||
|
Version 2: 430.1540 to 430.5290 |
|
|
||||||||||||||||||||||||||||||||
| Version 3: От 430.5300 |
|
|
||||||||||||||||||||||||||||||||
| SDS-M0431 110V | 431.010 до 431.160 |
|
|
|||||||||||||||||||||||||||||||
| SDS-M0440 230V | От 440.1 |
|
|
|||||||||||||||||||||||||||||||
| SDS-M0441 110V | От 441.1 |
|
|
|||||||||||||||||||||||||||||||
*) Тип двигателя больше не доступен.
Альтернативное Deliverable расположение, содержащее с
FAN02.121 + FAN02.006 + FAN02.015 + FAN02.023 + FAN02.035 + MET01.020 + MET01.021 (Siehe ННР.)
**) Держатель двигателя больше не доступен.
Примечание:
Замена шаровых опор держателя двигателя затруднено и вряд ли будет сделано без специальных инструментов. Извлечение крыльчатки может привести к неуравновешенности, которая может создавать вибрации.
Повреждение подшипников, если они не сбалансированы снова.
Альтернатива: Смонтированный модуль вождения, Art.No. BG01.400, совместно с 8, 9, 10, 11, 12. (12кг)
|
1 Угол монтажа
2 Корпус рабочего колеса
3 Воздух на выходе коллектора
4 Коллектор воздухозабора
5 Воздухозабор
|
6 Воздух на выходе
7 Обратный клапан
8 Заглушка
Art.No. FAN02.006
9 Вентилятор
Art.No. FAN02.015
10 Плоская прокладка
Art.No. FAN02.023
|
11а Уплотнение Art.No. MET01.035
11b опорное кольцо Art.No. MET01.020
11c крышка Art.No. MET01.021
11d Винт Art.No. V01.042
|
12 двигатель аб / с серийным номером 430.5300: Art.No. FAN02.121
12аШариковый подшипник со стороны вала Тип 6204 2Z C3 Art.No. FAN02.037
12b Шариковый подшипник Тип 6202 2Z C3 Art.No. FAN02.036
|
Примечание (Art.No. BG 01,400): Предварительно смонтированный приводной модуль, состоящий из: Поз. 8, 9, 10, 11, 12 для преобразования от предыдущей к текущей версии. |
| Список комплектующих Система SDS-2/6 SAFETEC | |||||||||||||||||||||||||||||||||||||
|
№ Тип |
Замечания | Изображение | |||||||||||||||||||||||||||||||||||
| BG01.304 |
PCB в панели повтоорителя с винтовыми клеммами для подключения кабеля и разъема для индикации/ управления модуля BG01.501. Адаптер - печатная плата, содержит реле и клеммы для пожара, неисправности и общей тревоги, а также терминалы для внешнего зуммера.
Размеры: 110 х 60 х 15 мм Вес: 80г
|
|
|||||||||||||||||||||||||||||||||||
| Адаптер-PCB для панели повторителя | |||||||||||||||||||||||||||||||||||||
| Система SDS-2/6 | |||||||||||||||||||||||||||||||||||||
| BG01.400 |
Включает в себя двигатель, держатель двигателя, крышки, рабочее колесо, запечатывание и монтажный материал.
Размеры: 370 х 260 х 370 мм Вес: 13,3kg
|
|
|||||||||||||||||||||||||||||||||||
| Модуль вентилятора для блока вентилятора SDS-M0430 | |||||||||||||||||||||||||||||||||||||
| Система SDS-2/6 | |||||||||||||||||||||||||||||||||||||
| BG01.530 |
Индикация - модуль / управления устанавливается сзади передней дверцы панели обнаружения дыма. Она содержит LC - дисплей, светодиоды и кнопку - для работы системы. Этот модуль BG01.530 также может быть заменен модулем управления BG01.531. BG01.531 имеет дополнительный автоматический диммер для уменьшения яркости светодиодов в условиях недостаточной освещенности.
Размеры: 182 х 105 х 38 мм Вес: 270г
|
|
|||||||||||||||||||||||||||||||||||
| Индикация и модуль управления для панели обнаружения дыма | |||||||||||||||||||||||||||||||||||||
| Система SDS-2/6 | |||||||||||||||||||||||||||||||||||||
| BG01.531 |
Индикация - модуль / управления устанавливается за передней крышкой панели повторителя. Она содержит LC - дисплей, светодиоды и кнопку - для работы системы. Этот модуль BG01.531 также может быть заменен модулем BG01.530 индикации управления, за исключением того, что BG01.530 имеет автоматическое затемнение для уменьшения яркости светодиодов в темной окружающей среде.
Размеры: 182 х 105 х 38 мм Вес: 270г
|
|
|||||||||||||||||||||||||||||||||||
| Индикация и модуль управления для панели обнаружения дыма | |||||||||||||||||||||||||||||||||||||
| Система SDS-2/6 | |||||||||||||||||||||||||||||||||||||
| BG01.602 | такой же, как BG01.603, но с дополнительными клеммами для 24 В постоянного тока аварийного электропитания. |
|
|||||||||||||||||||||||||||||||||||
|
Модуль источника питания, добав. 24VDC Авар. поставка
|
|||||||||||||||||||||||||||||||||||||
| Система SDS-2/6 | |||||||||||||||||||||||||||||||||||||
| BG01.603 |
Блок питания монтируется в панели обнаружения дыма. Он содержит все соединения цепи для основного и аварийного питания, как для блока вентилятора, так и для предохранителей и клемм для релейных контактов.
Заменяет BG01.600 и BG01.601.
Размеры: 176 х 160 х 55 мм Вес: 1200g
|
|
|||||||||||||||||||||||||||||||||||
| Модуль источника питания | |||||||||||||||||||||||||||||||||||||
| Система SDS-2/6 | |||||||||||||||||||||||||||||||||||||
| BG01.720 |
Модуль обнаружения интерфейса установлен на панели обнаружения дыма и в блоке расширения.
Размеры: 107 х 88 х 40 мм Вес: 100 г
|
|
|||||||||||||||||||||||||||||||||||
| Модуль обнаружения интерфейса | |||||||||||||||||||||||||||||||||||||
| Система SDS-2/6 | |||||||||||||||||||||||||||||||||||||
| DOK02.021 |
Размер: приблизительно 50 страниц A4
Вес: 330г
|
|
|||||||||||||||||||||||||||||||||||
| Руководство для SDS-2/6, Немецкая версия | |||||||||||||||||||||||||||||||||||||
| SDS-2/6 | |||||||||||||||||||||||||||||||||||||
| DOK02.031 |
Размер: приблизительно 50 страниц A4
Вес: 330г
|
|
|||||||||||||||||||||||||||||||||||
| Руководство для SDS-2/6, английская версия | |||||||||||||||||||||||||||||||||||||
| SDS-2/6 | |||||||||||||||||||||||||||||||||||||
| E01.001 |
Индикатор воздушного потока (реле давления от 0,2 до 3 мбар) устанавливается в верхних корпусах панелей обнаружения дыма и блоков расширения. Стандартная настройка 0,3 мбар.
Размеры: D = 81мм H = 50мм Вес: 120г
|
|
|||||||||||||||||||||||||||||||||||
| Индикатор расхода воздуха для SDS-2/6 или SDS-48 | |||||||||||||||||||||||||||||||||||||
| Tип 604 | |||||||||||||||||||||||||||||||||||||
| E06.003 |
Стабилитрон Барьерный установлен в панели обнаружения дыма. Электрические стабилитроны расположены между датчиками дыма и индикаторами воздушного потока на одном модуле интерфейса ручного и детектора по обеспечению искробезопасной работы.
Размеры: 115 х 12,5 х 110 мм Вес: 150 г
|
|
|||||||||||||||||||||||||||||||||||
| Стабилитрон Барьерный Z967 | |||||||||||||||||||||||||||||||||||||
| Система SDS-2/6 | |||||||||||||||||||||||||||||||||||||
| E08.001 |
Детекторы дыма расположены в детекторных коробках панели обнаружения дыма и устройствах расширения.
Размеры: 145 х 67 мм (включая основание) Вес: 300 г
|
|
|||||||||||||||||||||||||||||||||||
| Детектор дыма BHH-31A/Ex | |||||||||||||||||||||||||||||||||||||
| Система SDS-2/6 | |||||||||||||||||||||||||||||||||||||
| E08.002 |
Основания для детекторов дыма расположены в детекторных коробках панели обнаружения дыма и устройства расширения.
Размеры: D = 145 мм Вес: 300 г
|
|
|||||||||||||||||||||||||||||||||||
| Основания для детектора дыма BWA-40A/1 | |||||||||||||||||||||||||||||||||||||
| Система SDS-2/6 | |||||||||||||||||||||||||||||||||||||
| E08.801 |
для использования на близких расстояниях для тестирования детекторов дыма
Содержание: 250мл
вес: 125g
|
|
|||||||||||||||||||||||||||||||||||
| Тест Спрей для Детектора дыма | |||||||||||||||||||||||||||||||||||||
| 918/5 | |||||||||||||||||||||||||||||||||||||
| FAN01.001 | Размеры: 440 х 370 х 240 мм Вес: 12,5 кг |
|
|||||||||||||||||||||||||||||||||||
| Вентилятор с клиновоым ремнем для блока вентилятора SDS-M0420 | |||||||||||||||||||||||||||||||||||||
| HRE 1/2 T/S 458 | |||||||||||||||||||||||||||||||||||||
| FAN01.003 |
Создатель двигателя: Elektror 72 х 45 мм
Кабель: 40 см Резьба: M8
Размеры: D = 45; H = 120 мм Вес: 220г
|
|
|||||||||||||||||||||||||||||||||||
|
Конденсатор для блока вентилятора SDS-M0420, Двигатель:
Elektror
|
|||||||||||||||||||||||||||||||||||||
| 20 µF | |||||||||||||||||||||||||||||||||||||
| FAN01.004 |
Расположение: корпус V-ремня (внутренняя сторона)
Размеры: D = 35; H = 10 мм Вес: 50
|
|
|||||||||||||||||||||||||||||||||||
| Шариковый подшипник для блока вентилятора SDS-M0420 | |||||||||||||||||||||||||||||||||||||
| 6202 - 2ZC3 | |||||||||||||||||||||||||||||||||||||
| FAN01.006 | Размеры: D = 200 мм Вес: 40г |
|
|||||||||||||||||||||||||||||||||||
| V-Belt для блока вентилятора SDS-M0420 | |||||||||||||||||||||||||||||||||||||
| для HRE 1/2 T S 458 | |||||||||||||||||||||||||||||||||||||
| FAN01.008 | Размеры: D = 50 мм Вес: 20 г |
|
|||||||||||||||||||||||||||||||||||
| Зажим для конденсатора FAN01.003 | |||||||||||||||||||||||||||||||||||||
| FAN01.010 |
Расположение:копус V-ремня(внешняя сторона)
Размеры: D = 50; H = 15 мм Вес: 100 г
|
|
|||||||||||||||||||||||||||||||||||
| Шариковый подшипник для блока вентилятора SDS-M0420 | |||||||||||||||||||||||||||||||||||||
| Tип 6205 -2ZC3 | |||||||||||||||||||||||||||||||||||||
| FAN02.015 |
Диаметр: 300 мм
Вес: 920 г
|
|
|||||||||||||||||||||||||||||||||||
| Рабочее колесо, алюминий, TL-HL 300x49-R | |||||||||||||||||||||||||||||||||||||
| для SDS-M0430/431 | |||||||||||||||||||||||||||||||||||||
| FAN02.019 | Размеры: D = 250; H = 30 мм Вес: 600г |
|
|||||||||||||||||||||||||||||||||||
| Рабочее колесо, алюминий, для вентилятора Блок SDS-M0420 | |||||||||||||||||||||||||||||||||||||
| вентилятор HRE 1/2 | |||||||||||||||||||||||||||||||||||||
| FAN02.029 |
для блока вентилятора SDS-M0430 с типом двигателя 'EMOD'
Размеры: D = 35; H = 10 мм Вес: 50 г
|
|
|||||||||||||||||||||||||||||||||||
| Шариковый подшипник для блока вентилятора SDS-M0430, двигатель: EMOD | |||||||||||||||||||||||||||||||||||||
| Tип 6202-2RS1 | |||||||||||||||||||||||||||||||||||||
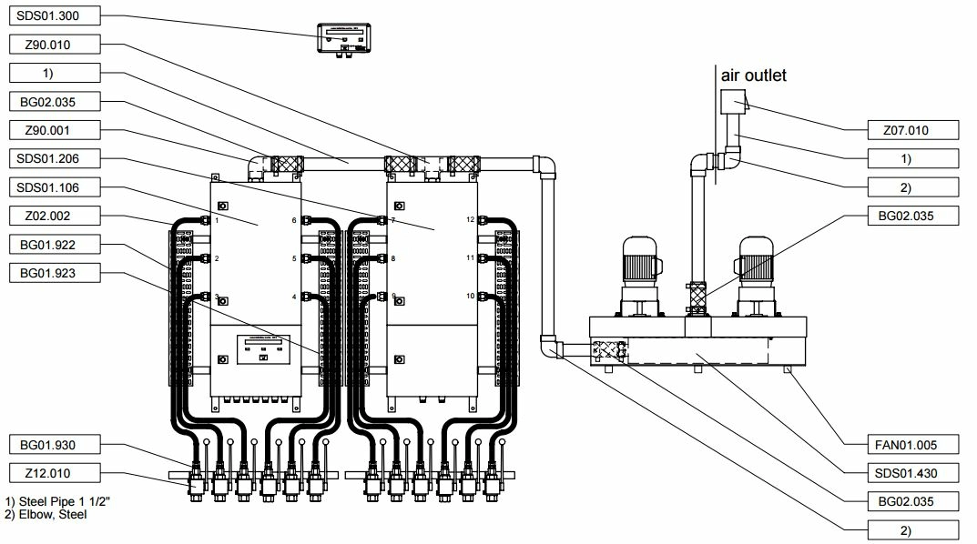
| Fan02.035 |
Подходит для установки на вентиляторе SDS.02.440 и SDS02.441.
Вес: 8g
|
|
|||||||||||||||||||||||||||||||||||
| уплотнения для вала двигателя, для SDS02.440 | |||||||||||||||||||||||||||||||||||||
| PTFE | |||||||||||||||||||||||||||||||||||||
| FAN02.036 |
для блока вентилятора SDS-M0430 с типом двигателя 'Хенинга'
Размеры: D = 35; H = 10 мм Вес: 50 г
|
|
|||||||||||||||||||||||||||||||||||
| Шариковые подшипники для блока вентилятора SDS-M0430 / M0440 | |||||||||||||||||||||||||||||||||||||
| Tип 6202 2Z C3 | |||||||||||||||||||||||||||||||||||||
| FAN02.037 |
для блока вентилятора SDS-M0430 с мотором типа 'Хенинга'
Размеры: D = 35; H = 10 мм Вес: 50 г
|
|
|||||||||||||||||||||||||||||||||||
| Шариковые подшипники для блока вентилятора SDS-M0430 / M0440 | |||||||||||||||||||||||||||||||||||||
| Tип 6204 2Z C3 | |||||||||||||||||||||||||||||||||||||
| FAN02.100 |
Создатель двигателя: EMOD
Электродвигатель блока вентилятора SDS - M0430
для серийных Nos. вентилятора блока 430.0010 через 430.5290 для последующих вентиляторных блоков см FAN02.121
Размеры: D = 150; H = 240 мм Вес: 7 кг
|
|
|||||||||||||||||||||||||||||||||||
| E-Motor, 1Ph.230V, 50/60 Гц, для блока вентилятора SDS-M0430, Emod | |||||||||||||||||||||||||||||||||||||
| 71L/2EHB0 | |||||||||||||||||||||||||||||||||||||
| FAN02.111 |
для двигателя вентилятора № FAN02.100
(Последовательные блоки вентилятора 430.0010 через 430.5290)
Размеры: D = 40; H = 80 мм Вес: 100 г
|
|
|||||||||||||||||||||||||||||||||||
|
Конденсатор для блока вентилятора SDS-M0430, двигатель:
Emod
|
|||||||||||||||||||||||||||||||||||||
| 16 µF 450VAC | |||||||||||||||||||||||||||||||||||||
| FAN02.112 |
Для вентилятора No. FAN02.121 Размеры: D = 35; H = 110 мм Вес: 100 г |
|
|||||||||||||||||||||||||||||||||||
| Конденсатор для блока вентилятора SDS-M0440 | |||||||||||||||||||||||||||||||||||||
| 10 µF 450VAC | |||||||||||||||||||||||||||||||||||||
| FAN02.114 |
Для вентилятора No. FAN02.131
Размеры: D = 45; H = 110мм Вес: 200г
|
|
|||||||||||||||||||||||||||||||||||
|
Конденсатор для блока вентилятора SDS-M0441, двигатель:
хэннинг
|
|||||||||||||||||||||||||||||||||||||
| 40 µF 240В | |||||||||||||||||||||||||||||||||||||
| FAN02.115 |
Для вентилятора No. FAN02.122
Размеры: D = 40; H = 80 мм Вес: 100 г
|
|
|||||||||||||||||||||||||||||||||||
|
Конденсатор для блока вентилятора SDS-M0420, двигатель:
хэннинг
|
|||||||||||||||||||||||||||||||||||||
| 12 µF 450VAC | |||||||||||||||||||||||||||||||||||||
| FAN02.121 |
Электродвигатель для блока вентилятора SDS - M0430
для серийных вентиляторов блока 430.5300 и выше производитель двигателя: Хеннинга
Конденсатор: см FAN02.112
Диам .: 350 мм
Вес: 6,1 кг
|
|
|||||||||||||||||||||||||||||||||||
|
E-Motor, 1Ф. 230,
50 / 60Гц, Хеннинг, для вентилятора
|
|||||||||||||||||||||||||||||||||||||
| E7KC2B5-7-378 | |||||||||||||||||||||||||||||||||||||
| FAN02.122 |
Электродвигатель для блока вентилятора SDS - M0420 Создатель двигателя: Хеннинг
Конденсатор: см FAN02.115
Размеры: D = 150; H = 280 мм Вес: 7 кг
|
|
|||||||||||||||||||||||||||||||||||
|
Электродвигатель, 1 Тел. 230 В,
50 / 60Гц,
Хеннинг, для вентилятора
|
|||||||||||||||||||||||||||||||||||||
| E7D2B-7-390 | |||||||||||||||||||||||||||||||||||||
| FAN02.213 | Размеры: 320 х 220 х 100 мм Вес: 2 кг |
|
|||||||||||||||||||||||||||||||||||
| Клиновой ремень привода для блока вентилятора SDS-M0420 | |||||||||||||||||||||||||||||||||||||
| TN15782 | |||||||||||||||||||||||||||||||||||||
| SDS01.910 |
Запасной комплект для системы обнаружения дыма с вентилятором SDS блока - M0420 содержит:
предохранитель средний действующий 0,4A 10 шт предохранитель средний действующий 1A 10 шт предохранитель средний действующий 1,6A 10 шт предохранитель средний действующий 8A
запасной ключ для SDS 5 шт слеп PG16 железы 1 шт
клиновый ремень для блока вентилятора SDS-M0420 1 шт
|
|
|||||||||||||||||||||||||||||||||||
| Набор зап.частей с V-Belt | |||||||||||||||||||||||||||||||||||||
| для SDS-M0420 | |||||||||||||||||||||||||||||||||||||
| SDS01.911 |
Запасной комплект часть для системы обнаружения дыма с вентилятором SDS блока - M0430 содержит:
предохранитель средний действующий 0,4A 10 шт предохранитель средний действующий 1A 10 шт предохранитель средний действующий 1,6A 10 шт предохранитель средний действующий 8A1 шт
запасной ключ для SDS 5 шт слеп PG16 железы 1 шт
Вес: 125г
|
|
|||||||||||||||||||||||||||||||||||
| Набор зап.частей | |||||||||||||||||||||||||||||||||||||
| для SDS-M0430 | |||||||||||||||||||||||||||||||||||||
| Z02.002 |
Материал: ПВХ 8020/7020
Цвет: прозрачный 29101, номинальное давление на 20|C: 10
подходит для соединения между образцом воздухозаборных панелей обнаружения дыма /панелей расширения / 3-ходовых клапанов
Вес: 230г на метр
|
|
|||||||||||||||||||||||||||||||||||
| Гибкий шланг (ПВХ) | |||||||||||||||||||||||||||||||||||||
| Внутренний диаметр 13x3,5 мм | |||||||||||||||||||||||||||||||||||||
| Z02.004 |
подходит для соединения между панелями обнаружения дыма и агрегатов воздушного вентилятора, когда стальная труба вызывает проблемы (должны быть утверждены классы сюрвейера)
Материал: - ПВХ
- Стальная спираль
цвет: серый
Вес: 540г на метр
|
|
|||||||||||||||||||||||||||||||||||
| Гибкий шланг со спиралью, диаметр 50 мм | |||||||||||||||||||||||||||||||||||||
| AIRDUC, ПВХ 343, серый | |||||||||||||||||||||||||||||||||||||
| Z02.014 |
диаметр 70 мм
подходит для подключения ПВХ-шланга Z02.004 или для других целей
Вес: 40г
|
|
|||||||||||||||||||||||||||||||||||
| Зажим для шланга, 50-70 мм | |||||||||||||||||||||||||||||||||||||
| Гальванизированный | |||||||||||||||||||||||||||||||||||||
